Sosnowiec, Zagórze, Szymanowskiego

Dom na sprzedaż

Opis nieruchomości

PRZEDMIOT OFERTY:

Przedmiotem oferty sprzedaży jest dom w zabudowie szeregowej (środkowy segment) wykończony w STANIE DEWELOPERSKIM o powierzchni użytkowej 112,30m2 .
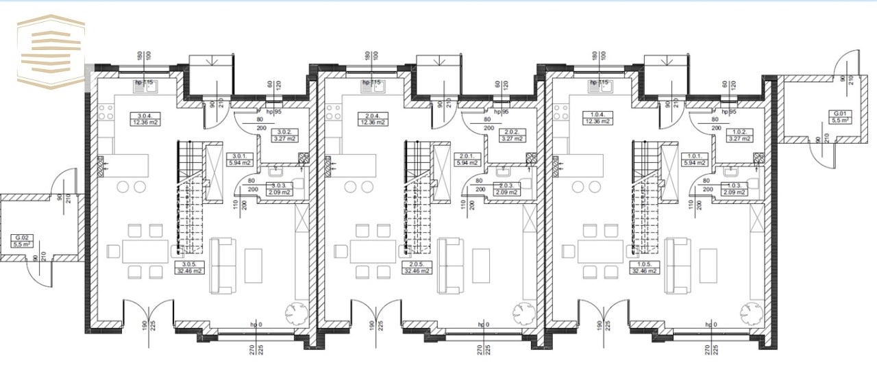
Dom położony na działce o powierzchni 294m2, z ogrodem wychodzącym na stronę południową, posiada dwie kondygnacje mieszkalne na które składa się z :

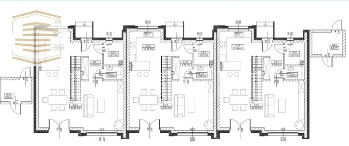
PARTER (56,12m2): 

SALON - 32,46m2
OTWARTA KUCHNIA - 12,36m2
WIATROŁAP - 5,94m2
KOTŁOWNIA - 3,27m2
WC - 2,09m2

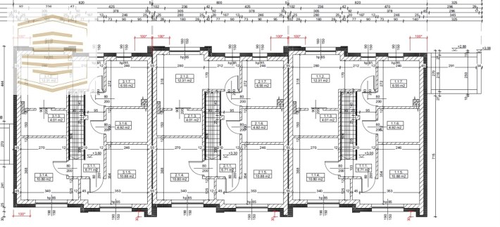
PIĘTRO (56,18m2): 

POKÓJ 1 - 12,31m2
POKÓJ 2 - 10,80m2
POKÓJ 3 - 10,88m2
PRZEDPKÓJ- 32,46m2
GARDEROBA 1 - 4,01m2
GARDEROBA 2 - 4,92m2
ŁAZIENKA - 6,55m2


TECHNOLOGIA BUDOWY:


Każdy z domów posiada własną żelbetonową płytę fundamentową, budowany w technologii murowanej z pustaków POROTHERM DRYFIX, stropy żelbetowe, ściany zewnętrzne ocielone styropianem 20cm, elewacja z tynku silikonowego. Dach dwuspadowy (system wiązarów) pokryty blachodachówką - wzmocniony pod montaż fotowoltaiki.
Stolarka okienna trzyszybowa klasy premium, wyposażone w rolety zewnętrzne. 

WYKOŃCZENIE:

Dom sprzedawany jest w stanie deweloperskim wykonanym zgodnie ze sztuką budowlaną i dużą starannością.
  • Na ścianach położone wysokiej klasy tynki przygotowane pod malowanie lub położenie jednej warstwy gładzi.
  • Poddasze ocieplone
  • Na obydwu kondygnacjach rozprowadzona instalacja elektryczna, wodk-kan, grzewcza
  • Na podłogach rozprowadzone ogrzewanie podłogowe i wylana wylewka betonowa.
  • Dom przygotowany pod wykończenie.
  • Wszystkie okna z roletami antywłamaniowymi,
  • W domu zamontowane schody 

MEDIA:

Kanalizacja: szambo
Dom przygotowany pod montaż pompy ciepła i fotowoltaiki
Instalacja wodociągowa doprowadzona do budynku.
Przyłącze elektryczne doprowadzone do skrzynek elektrycznych przy domu


CHARAKTERYSTYKA  INWESTYCJI:

Osiedle składać się będzie z 6 domów w konfiguracji: 3 segmenty szeregowe /2 segmenty bliźniaka /1 segment wolnostojący, usytuowanych są na działkach o powierzchniach ok. 220-240m2.
Segmenty domów rozmieszczone są w sposób zapewniający pełną swobodę i prywatność mieszkańców. Bezpieczeństwo zapewnia cicha i spokojna okolica. Osiedle budowane jest na podstawie projektu, który charakteryzuje się przemyślaną i funkcjonalną architekturą zapewniającą komfort i wygodę mieszkania.

Teren osiedla zostanie całkowicie ogrodzony parkanem betonowym. Na terenie osiedla powstanie utwardzona wewnętrzna droga dojazdowa, okrawężnikowana, wysypana kamieniem szarym płukanym.
Wjazd na osiedle będzie zabezpieczone bramą 

POŁOŻENIE I OKOLICA:

Osiedle usytuowane jest spokojnym kameralnym miejscu w sąsiedztwie lasu i stawu Świniarnia. Idealne dla osób ceniących sobie ciszę i spokój.
Równocześnie szybki i dogodny dojazd do centrum Sosnowca (5,5km). W pobliżu znajdują się przystanki autobusowe oraz: Biedronka 500 m, Lidl 600 mm, siłownia Gym el Toro 300 m, Castorama 1500 m, Makro 1500 m. Wyjazd na obwodnicę S1 -500m.

DOM Z POZWOLENIEM NA UŻYTKOWANIE, MOŻLIWY DO KUPIENIA OD ZARAZ.

Przedstawiona propozycja nie jest ofertą handlową w rozumieniu przepisów prawa, lecz ma charakter informacyjny.


 

Nota prawna

Opis oferty zawarty na stronie internetowej sporządzany jest na podstawie oględzin nieruchomości oraz informacji uzyskanych od właściciela, może podlegać aktualizacji i nie stanowi oferty określonej w art. 66 i następnych K.C.

Szczegóły oferty

Symbol oferty IGNR-DS-4761
Powierzchnia 112,30 m²
Powierzchnia użytkowa 112,30 m²
Powierzchnia działki 294 m²
Liczba pokoi 4
Rodzaj domu szereg środkowy
Technologia budowlana pustak porotherm
Standard
Liczba pięter w budynku 1
Garaż w budynku
Stan prawny Własność
Okna nowe PCV
Instalacje nowe
Balkon brak
Zagosp. działki niezagospodarowana
Ukształtowanie działki płaska
Kształt działki prostokat
Pokrycie dachu blachodachówka
Pozwolenie na użytkowanie tak
Stan budynku do wykończenia
Ogrodzenie działki brak
Rok budowy 2025
Gaz brak
Woda jest
Dojazd droga utwardzona
Otoczenie działki zabudowane
Ogrzewanie pompa ciepła
Przystosowania dla niepełnosprawnych tak
Prąd jest
Kanalizacja szambo

Pomieszczenia

Podłogi pokoi wylewka
Typ kuchni widna
Rodzaj kuchni aneks kuchenny - połączony z salonem
Typ łazienki razem z wc
Liczba łazienek 2
Podłoga łazienki wylewka betonowa

Kalkulator kredytowy

PLN
%
Wysokość raty

Kalkulator kosztów

PLN
PLN
PLN
PLN
PLN
PLN
%
PLN
Podatek od czynności cywilno-prawnych
Taksa notarialna (opłata notarialna)
VAT od taksy notarialnej (opłaty notarialnej)
Wniosek do WKW
VAT od wniosku do WKW
Prowizja agencji nieruchomości
VAT od prowizji agencji nieruchomości
Wypisy aktu notarialnego - około
RAZEM (cena + opłaty)

Napisz do nas

Proszę wypełnić to pole
Proszę wypełnić to pole
Proszę wypełnić to pole
Proszę wypełnić to pole
Trwa wysyłanie...

Ta strona wykorzystuje pliki cookies w celach statystycznych oraz w celu dostosowania naszych serwisów do indywidualnych potrzeb klientów. Zmiany ustawień dotyczących plików cookie można dokonać w dowolnej chwili modyfikując ustawienia przeglądarki. Korzystanie z tej strony bez zmian ustawień dotyczących cookies oznacza, że będą one zapisane w pamięci urządzenia.

rozumiem